128 Medici Lane, Hamilton,

 Property Preview

 Photo Gallery

 3d TOUR

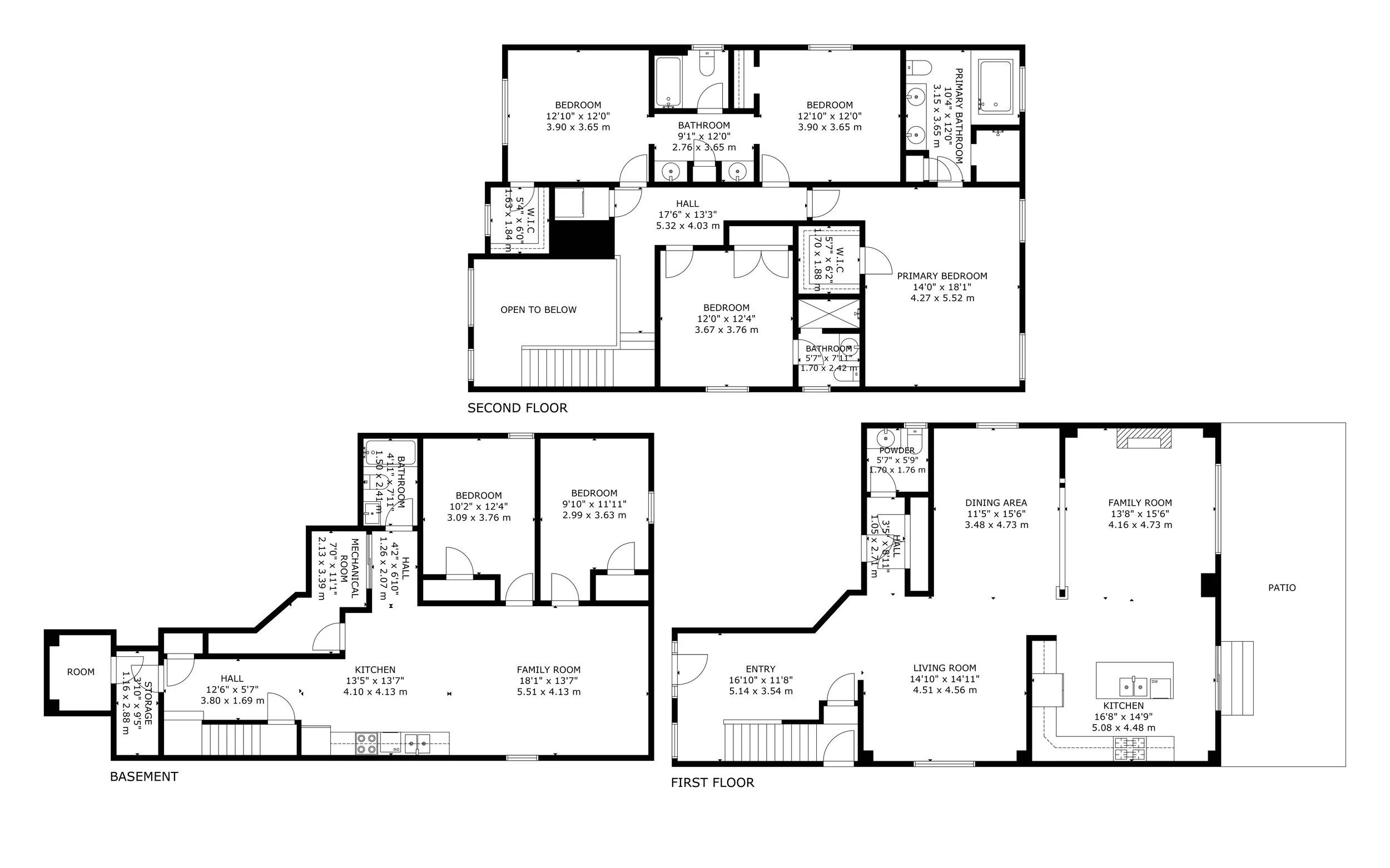
 Floor Plans

 Location

 

Contact us!

Zaya Oshana

Contact: (905) 537-8987

RE/MAX Escarpment Realty Inc.
1595 Upper James St,
Hamilton, ON L9B 1K8

 
 

 Contact Team Grande for more information here.